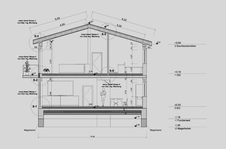
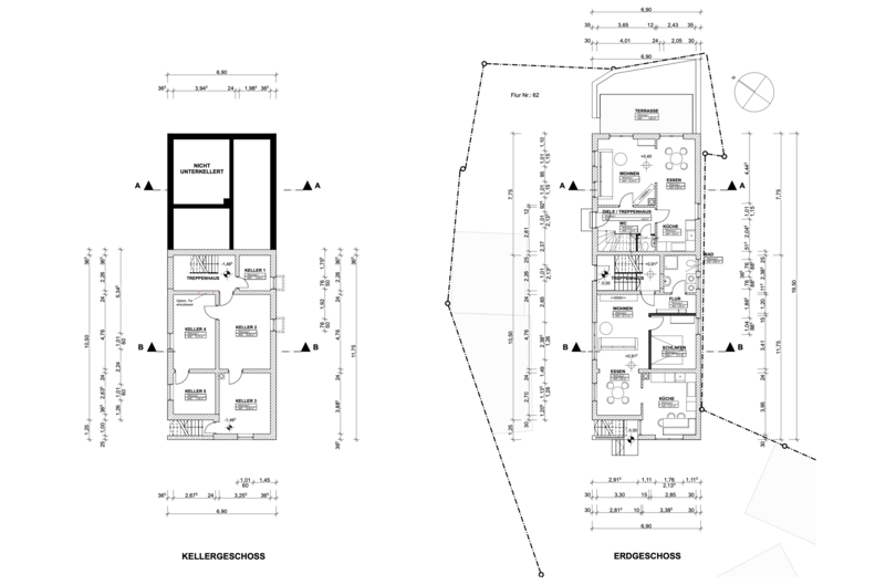
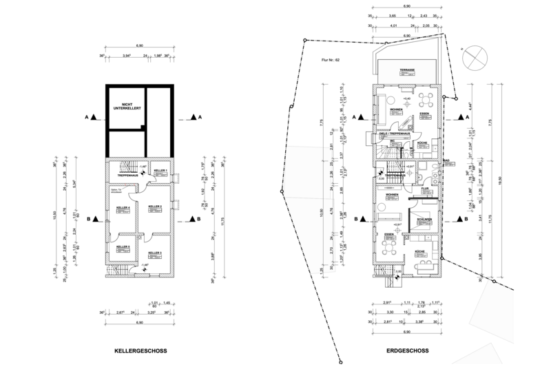
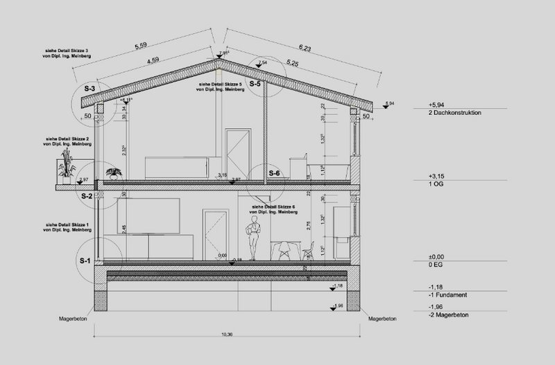
Archicad
CAD Programm mit neuester Version
Flucht- & Rettungsplan
z.B. für öffentliche oder gewerbliche Gebäude wie Schulen, Kindergärten oder Arbeitsstätten
Nutzungsänderung
Erstellen von Bauzeichnungen im Maßstab 1:100, mit Eintragung der bisherigen und künftigen Nutzung, sowie das Ausfüllen von Antragsformularen
Teilungserklärung, Abgeschlossenheit
Erstellen und Aufteilen der Wohneinheiten z.B. für den Verkauf oder Überschreibungen beim Notar
Digitalisierung von Bestandsplänen
z.B. für den Verkauf von Immobilien, Teilungserklärungen, Überschreibung von Immobilien für den Notar, Brandschutzkonzepte, Weiterverarbeitung der Planunterlagen für Architekten & Ingenieure
Erstellung von Restnutzungsdauergutachten
Sparen Sie Finanzmittel durch eine verkürzte Restnutzungsdauer.
Wir erstellen rechtssichere Gutachten für Ihre Immobilie.












